协和中学公共广播系统声学特性测试报告
1970/01/01 19:05 点击:811 / 回复:0
协和中学公共广播系统声学特性测试报告
曾维坚
[摘要]公共广播系统声学特性指标的测试是一项较复杂和繁琐的工作,到目前为止还没有相类似的文件和资料可供参考。笔者根据“公共广播系统工程技术规范(草案)”第6章“公共广播系统声学特性的测量方法”的规定和要求,根据声雅公司的公共广播系统的实际情况,选取了几个有代表性的广播服务区,分别对这几个广播服务区内的最大声压级、声场不均匀度、漏出声压级、系统噪声以及传输频率特性这几项声学特性指标进行了测量,这次测试的目的是为了验证“公共广播系统工程技术规范(草案)”有关声学特性指标设定的正确性。
[关键词]最大声压级Maximum Sound Pressure Level 声场不均匀度 Sound distribution 漏出声压级Leak Out Sound Pressure Level 系统噪声传输频率特性Transmission Frequency Response
根据《公共广播系统工程技术规范(草案)》(下称“草案”)第5章“公共广播系统的声学特性”和第6章“公共广播系统声学特性的测量方法”的规定和要求,2006年8月24日我们对广州市协和中学的公共广播系统(室外部分)进行了声学特性以及设备性能的测试。
1、 此广播系统(室外部分)由以下设备组成:可寻址广播主机ADR31一台、可寻址广播
解码器ADR33四台、CD播放器PC1007C一台、纯后级广播功放PC1700三台、PC3200一台、喇叭若干(包括多种型号的音柱)。系统连接如图1。
.png)
图1 协和中学公共广播系统连接图
2、测试信号和设备:测试信号用宽带粉红噪声,测试设备用实时音频测试仪(PERSONAL AUDIO ASSISTANT)PHONIC PAA2。
3、测试项目:此次测试的系统是属于同时具有一级背景音乐播放和一级级业务性广播的广播系统,本次测试的项目有最大声压级、声场不均匀度、漏出声压级、传输频率特性以及系统设备信噪比。
4、测试条件和要求:测试在空场的条件下进行,系统置于额定输出(100V)下降10dB(31V)的位置。
5、测量方法及测量结果:协和中学公共广播系统共有四个室外分区,包括广场、走廊、丁字走廊和篮球场。我们此次测试选择了广场、篮球场、一楼走廊和一条丁字走廊作为测试区域,用实时音频测试仪,分别对以上区域进行最大声压级、声场不均匀度、漏出声压级(个别区域进行测量)、传输频率特性等几项声学特性指标的测量以及系统设备信噪比的测量。
5.1 最大声压级的测量
5.1.1 广场广播服务区的测量
广场广播服务区测试点分布如图2。测量结果见表1。
图2 广场广播服务区测试点分布图
表1 各测试点测量值 (C计权)
|
测试点 |
A |
B |
C |
D |
E |
|
声压级(dB) |
82 |
76 |
78.6 |
82 |
67.7 |
测试结果不符合“草案”的指标要求,E点声压级偏低。原因是该广场比较大,广播扬声器的功率显得不足。
5.1.2 一楼走廊广播服务区的测量
走廊广播服务区测试点分布如图3。测量结果见表2。

图3 一楼走廊广播服务区测试点分布图
表2 各测试点测量值一览表(C计权)
|
测试点 |
A |
B |
C |
D |
E |
|
声压级(dB) |
85.2 |
83.9 |
78.6 |
80.8 |
85.5 |
测试结果符合“草案”的指标要求。但从测量结果看,测量点的选择值得讨论。A、B、D、E是按“草案”要求取点的,正好在广播扬声器附近,故声压级较高,不完全反映整个服务区的实际情况。C点是临时增加的,选在两个扬声器之间的中点,该点离扬声器最远,暴露出声压暗区。看来测量点的选择须附加条件,比如“追加点应选在两个广播扬声器之间的中点”。
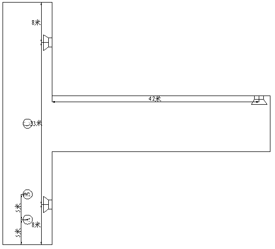
5.1.3 丁字走廊广播服务区的测量
丁字走廊广播服务区测试点分布如图4。测量结果见表3。

图4 丁字走廊广播服务区测试点分布图
表3 各测试点测量值一览表(C计权)
|
测试点 |
A |
B |
C |
|
声压级(dB) |
82 |
81.8 |
78.6 |
测试结果符合“草案”的指标要求。
5.1.4 篮球场广播服务区的测量
广播服务区测试点分布如图5。测量结果见表4。

图5 篮球场广播服务区测试点分布图
表4 各测试点测量值一览表(C计权)
|
测试点 |
C |
D |
E |
|
声压级(dB) |
77.2 |
77.1 |
78.7 |
测试结果符合“草案”的指标要求。
5.2 声场不均匀度的测量
表5 广场广播服务区的测量
|
测试点序号 |
A |
B |
C |
D |
E |
|
声压级(dB) |
80.8 |
71.8 |
74.2 |
76.5 |
70.6 |
|
指标要求 |
1 k~6.3kHz范围内≯8 dB | ||||
|
测试结果判定 |
不合格,可能是广播扬声器布点不当。 | ||||
表6 篮球场广播服务区的测量
|
测试点序号 |
C |
D |
E |
|
声压级(dB) |
68.9 |
72.6 |
71.9 |
|
指标要求 |
1 k~6.3kHz范围内≯8 dB | ||
|
测试结果判定 |
合格 | ||
表7 一楼走廊广播服务区的测量
|
测试点序号 |
A |
C |
|
声压级(dB) |
82 |
74 |
|
指标要求 |
1 k~6.3kHz范围内≯8 dB | |
|
测试结果判定 |
合格 | |
表8 丁字走廊广播服务区的测量
|
测试点序号 |
A |
B |
C |
|
声压级(dB) |
77.8 |
79.5 |
74.9 |
|
指标要求 |
1 k~6.3kHz范围内≯8 dB | ||
|
测试结果判定 |
合格 | ||
5.3 漏出声压级的测量
此次测试只对广场广播服务区对临近地区的影响进行测量(见图6)。我们选择了与广场临近的足球场作为测试地点,测试点距离广场边界约50米。测量时,我们使用了两种测试方法,一种是粉噪测量法,也就是用粉噪作为测试信号,先测出场地的本底噪声声压级,再测量本底加上粉噪的声压级,然后将两个测量值相减(转换成声压相减,再取其差值的声压级)就得出广场广播服务区的漏出声压级;另一种测试方法是点频测量法,其方法和步骤与粉噪测量法相同,只是将测试信号换成点频信号(1kHz),将其测量值同从本底噪声频谱中的1kHz分量相减,得出漏出声压级的数值。当本底噪声很大时,后一种方法很容易直观地发现漏出的声压级。

图6 漏出声压级测试点示意图
表9 两种测试方法测量结果一览表(A计权值)
|
粉噪测量法 |
本底噪声 |
本底+粉噪 |
|
点频测量法 |
本底噪声中的1kHz分量 |
本底+点频(1kHz分量) |
|
声压级(dB) |
64.7 |
67.9 |
|
声压级(dB) |
38.9 |
47.1 |
|
漏出声压级(dB) |
65.1(注) |
|
漏出声压级(dB) |
46.4 | ||
两种测量方法的测量结果有较大出入,至于用哪一种测量方法比较合适,可留待讨论后再决定。
注:此数值的计算方法参考自天津大学机电科技中心网:
http// tdme.tju.edu.cn/technology/peixun/csjz/classroom.htm
5.4 传输频率特性的测量
5.4.1 广场广播服务区传输频率特性的测量
测量结果见表10、11、12、13、14。
表10 广场广播服务区D点传输频率特性(C计权)
|
频率点(Hz) |
100 |
125 |
160 |
200 |
250 |
315 |
400 |
500 |
630 |
800 |
1K |
|
声压级(dB) |
73 |
73.1 |
69.9 |
64.1 |
58.9 |
56.3 |
66 |
68 |
67.9 |
66.8 |
63.7 |
|
声压级差(dB) |
6.53 |
6.63 |
3.43 |
-2.37 |
-7.57 |
-10.17 |
-0.47 |
1.53 |
1.43 |
0.33 |
-2.77 |
|
频率点(Hz) |
1K25 |
1K6 |
2K |
2K5 |
3K15 |
4K |
5K |
6K3 |
8K |
10K |
12K5 |
|
声压级(dB) |
65.9 |
67 |
65.7 |
68.8 |
68.9 |
70.8 |
61.4 |
61 |
55 |
50.8 |
|
|
声压级差(dB) |
-0.57 |
0.53 |
-0.77 |
2.33 |
2.43 |
4.33 |
-5.07 |
-5.47 |
-11.47 |
-15.67 |
|
|
平均声压级(dB) |
66.47 (250-4kHz) | ||||||||||
|
指标要求(dB) |
±4(250-4kHz) |
+4/-10(100-12kHz) | |||||||||
|
测试结果判定 |
不合格(斜体字为不合格点) |
不合格(斜体字为不合格点) | |||||||||
表11 广场广播服务区C 测试点频率特性(C计权)
|
频率点(Hz) |
100 |
125 |
160 |
200 |
250 |
315 |
400 |
500 |
630 |
800 |
1K |
|
声压级(dB) |
66.9 |
71.4 |
69.1 |
64.6 |
63 |
61.3 |
62.2 |
62.7 |
60.4 |
61.9 |
57.4 |
|
声压级差(dB) |
3.79 |
8.29 |
5.99 |
1.49 |
-0.11 |
-1.81 |
-0.91 |
-0.41 |
-2.71 |
-1.21 |
-5.71 |
|
频率点(Hz) |
1K25 |
1K6 |
2K |
2K5 |
3K15 |
4K |
5K |
6K3 |
8K |
10K |
12K5 |
|
声压级(dB) |
55.9 |
61.3 |
64.5 |
66.7 |
66.4 |
68.4 |
65.5 |
61.9 |
53.5 |
|
51.2 |
|
声压级差(dB) |
-7.21 |
-1.81 |
1.39 |
3.59 |
3.29 |
5.29 |
2.39 |
-1.21 |
-9.61 |
|
-11.91 |
|
平均声压级(dB) |
63.11 (250-4kHz) | ||||||||||
|
指标要求(dB) |
±4(250-4kHz) |
+4/-10(100-12kHz) | |||||||||
|
测试结果判定 |
不合格(斜体字为不合格点) |
不合格(斜体字为不合格点) | |||||||||
表12 广场广播服务区E测试点频率特性(C计权)
|
频率点(Hz) |
100 |
125 |
160 |
200 |
250 |
315 |
400 |
500 |
630 |
800 |
1K |
|
声压级(dB) |
65.5 |
70.8 |
68.6 |
64.9 |
62.2 |
52.8 |
55.8 |
58.2 |
61 |
60.1 |
57 |
|
声压级差(dB) |
4.95 |
10.25 |
8.05 |
4.35 |
1.65 |
-7.75 |
-4.75 |
-2.35 |
0.45 |
-0.45 |
-3.55 |
|
频率点(Hz) |
1K25 |
1K6 |
2K |
2K5 |
3K15 |
4K |
5K |
6K3 |
8K |
10K |
12K5 |
|
声压级(dB) |
60 |
59.9 |
62.3 |
65.9 |
62.8 |
61.7 |
53.9 |
52.8 |
|
|
|
|
声压级差(dB) |
-0.55 |
-0.65 |
1.75 |
5.35 |
2.25 |
1.15 |
-6.65 |
-7.75 |
|
|
|
|
平均声压级(dB) |
60.55 (250-4kHz) | ||||||||||
|
指标要求(dB) |
±4 (250-4kHz) |
+4/-10 (100-12kHz) | |||||||||
|
测试结果判定 |
不合格(斜体字为不合格点) |
不合格(斜体字为不合格点) | |||||||||
表13 广场广播服务区A测试点频率特性(C计权)
|
频率点(Hz) |
100 |
125 |
160 |
200 |
250 |
315 |
400 |
500 |
630 |
800 |
1K |
|
声压级(dB) |
69.3 |
71.7 |
68.6 |
66.2 |
62.3 |
63.5 |
59.4 |
60.1 |
67.8 |
70.2 |
64.5 |
|
声压级差(dB) |
0.35 |
2.75 |
-0.35 |
-2.75 |
-6.65 |
-5.45 |
-9.55 |
-8.85 |
-1.15 |
1.25 |
-4.45 |
|
频率点(Hz) |
1K25 |
1K6 |
2K |
2K5 |
3K15 |
4K |
5K |
6K3 |
8K |
10K |
12K5 |
|
声压级(dB) |
66.4 |
72.9 |
75.2 |
72.6 |
70.9 |
72.6 |
64.6 |
68.9 |
58.9 |
53.6 |
51 |
|
声压级差(dB) |
-2.55 |
3.95 |
