我们是这样装有线广播站的
1970/01/01 19:07 点击:1036 / 回复:0
杜高鉴
编者按:四川乐山有线广播站的站内布置方法,在目前条件和需要下,是比较完善而切合实用的,虽然不一定每个站都能这样做,但却是一个值得学习的例子。
一个有线广播站,应当能转播无线电广播节目并播送本地的节目。播送这两种节目都需要用扩音机,每天广播时间较长的站,最好有两部扩音机替换使用。转播需要用无线电收音机,也最好有两部输流工作;播送本地节目需要用话筒和电唱盘,话筒除非为了备用的目的,一般只要一个;电唱盘应当有两个,以便一段唱完另一段立刻接得上去。
扩音机要接到许多路广播线,接每路线应当各用一个双刀双掷开关。因为扩音机是对一定大小的负荷供给额定的输出,负荷过大,扩音机内电子管和输出变压器受损固然不好;负荷小了,输出电压太高,也会破坏绝缘或击穿傍路电容器,而且最后送到喇叭去的电压也可能太高,有烧坏喇叭线圈的危险,特别是舌簧喇叭的线圈,包在磁铁中间,线很细一共有8000多圈,散热很难,电流稍大一些就可能把线圈烧断。因此扩音机的负荷必须稳定不变。接着许多喇叭的广播线就是扩音机的负荷,例如原来可以接十对线的扩音机,少接了几对线,就会使负荷减轻。为了要保持负荷不变,应当装用假负荷——负荷灯,随时可以用灯泡的电阻来代替广播线。当扩音机工作时,可以接通全部广播线;如果有几对线坏了要修理,就用双刀双掷开关换接负荷灯;或者某几路线不需要播音,也可以这样办。此外,还可以装一个开关,让用户点可以向播音站回播。
既用了好多路的开关和负荷灯,就需要用一个配电板,好来灵活调换。扩音机的轮换播音也需要用开关,都装在配电盘上。

两部扩音机和一个配电板,摆起来地方不小,要占一个小房间,需要有人在这里值机,备有值班人的桌椅。值班桌上还可以放置两部收音机。有线广播站的机房就是这样布置的(图1):并排的从左到右分开放着配电盘、第一部扩音机和第二部扩音机,把它们的面板都嵌在一块木板壁上,木板壁的最左边要开一个小门,人可以进去检修机器。这样把小房间就隔成了两间。木板壁前就放置值班人的桌椅。
机房的值机员要能够监听各种节目并随时作无线电转播或播送本地节目的调换,所以值机桌上应当装有便于监听和调换播音节目的开关和监听喇叭。
此外,在电源不稳的小市镇,必须要有一个电源调节变压器,和检查电源电压变化情况的电压表。这两样设备,都装在配电盘上。为了工作方便,配电盘面板上还可以装几个电源插座,可以接电烙铁、电风扇和收音机。
除了机房以外,一个有线广播站还应当有播音室。扩音室要没有杂音传进来。例如有人正在用话筒讲演,恰巧修机人员在那里敲敲打打,敲打的声音钻进话筒播送到用户去,便有碍收听。所以正规的播音室最好是和机房分开,中间隔一层玻璃窗,让播音人员和值机人员相互看得见,彼此连系方便。好的播音室真要做到门窗紧闭,一点嘈杂的声音也进不来。播音室里要有一张播音桌,好让管理播音的人员坐在桌子前面,掌握用话筒或用电唱盘;他要监听扩音机播出的声音,调整声音的大小,播得不好,便通知值机员调整。所以在播音桌上应当装有话筒插头、话筒、电唱盘选用开关、音量控制器和与机房连系的按钮。播音桌旁边还应当挂一个小监听喇叭。
扩音机末级的屏流表,和输出端上装的瓦特表,相互配合起来,可以正确的表示扩音机的工作情况,稍有经验的播音员一看这两个表的读数,同时听听监听喇叭,就能判断播音线上发生了什么问题(本刊1955年第6期“有线广播机上加装一只瓦特表的好处”一文,对这个问题有详细分析,可以参考——编者)。所以播音桌上也需要并排的装上这两个电表。有了这两个电表,在工作忙的情形下,可以不要专人在机房值机。
播音桌除安装需要的这些东西外,还要整齐美观,许多连接线应当装在桌面下边,但要使检修方便。所以桌面一般都是可以拆下来的(图2甲)。
上面我们谈了些有线广播站的一般布置和要求,下面再来谈谈具体的安装、布线方法和作用。
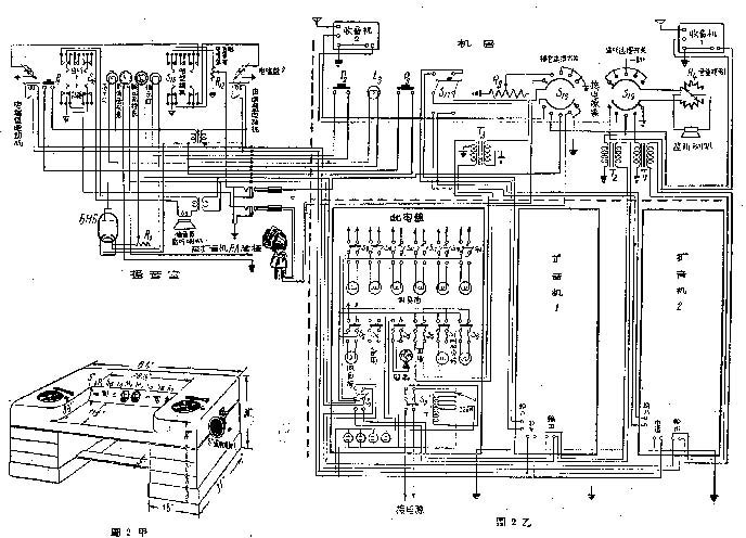
图2乙是一个播音站全部机线布线图。左边是播音桌上设备布线图,两个电唱盘一左一右放在桌面上,其余电表、开关插头等装在桌子中央斜面的横铁板上,话筒放在桌面上可以移动。图中右边上面是值机桌上设备接线图,两部收音机一左一右的放在桌面上,监听喇叭装在桌旁。其余的开关和变压器装在中央直放的铁板上;图中右边下面是配电盘和两部扩音机。
任何一部扩音机的输出线可由S1选择,接到S3和S9至S14的中间接头上。这些开关往上搬接负荷灯泡,往下搬接广播线。 S4是备用开关,S5接电风扇,必要时可以吹风冷却机件和电子管:S6合上后,用户点对播音站可以回播节目。S7和S8管接附加负荷,因为机器大喇叭少时,多接些负荷反安全。电源线经S2和保险丝到自偶变压器T,调整到220伏后,一方面接到几个电源插座,一方面接到扩音机和收音机。还接到播音室供给电唱盘的电动机用电。电唱盘上有自动开关(图3),拿起唱头来电动机就会旋转。
值机员要监听任何一部扩音机或收音机的输出时,可利用监听选择开关S19,监听喇叭的音量用 R4调节,要改换节目(话筒、唱盘、收音机转播或听回播节目)就用播音选择开关S18。要把节目输入到任一部扩音机去,就用双刀双掷开关S17。
S1上的中间接头又接到播音桌上的瓦特表和6H6整流管,任何一部扩音机有输出,瓦特表就有读数,并可用R1来调准。要播送唱片,播音员就把插塞P1插入插座J1,S16朝上是用左边电唱盘,朝下就用右边电唱盘;S15朝上可以监听,朝下就可以使用话筒,这时将话筒插塞插入话筒插座就可以播音。
播音室和机房连系用按钮P1,机房和播音室连系用P2和P3按下P1,L3就亮;按下P2和P3,L1和L2就亮。可以用红绿灯泡和灯亮次数表示一定的意义,以便调换节目,开机或关机。播音员可用R2控制播电唱盘的声音;值机员可用R3调节回播节目的音量;用话筒广播时没有音量调整,看瓦特表的读数便知道应当离远或离近些。S15和S16是普通电话总机上的开关。
扩音机末级灯丝变压器的中心要接地才接通屏极回路,现在是经过播音桌上的毫安表接地,便于播音员了解播音情况。 (四川乐山有线广播站杜高鉴)
文章:youk [1970/01/01 19:07]
评论
